Mobirise

La mejor alternativa para espacios provisionales.

Entrega Rápida

Oficinas portátiles preparadas para ser entregadas en obra, puntos de venta, eventos, desarrollos, reclutamientos, etc.

Precios competitivos

ofrecemos precios accesibles y soluciones flexibles para la renta de oficinas móviles. 

Facilidad de trámites

Optimizamos los procesos de renta para reducir tiempos y asegurar una entrega oportuna.

Mantenimiento

Ofrecemos mantenimiento a las unidades en renta. 

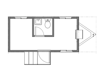
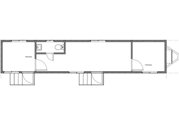
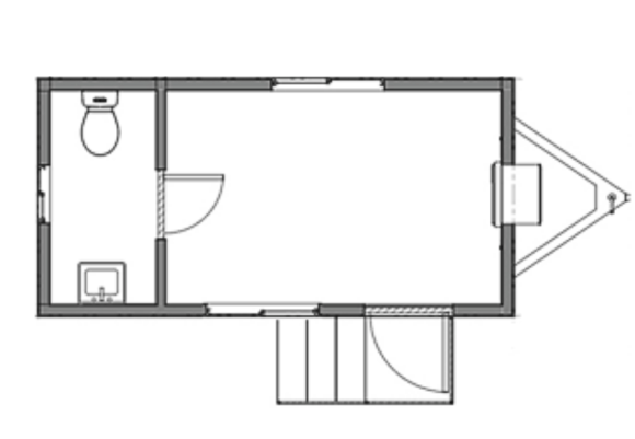
Oficinas Móviles Querétaro
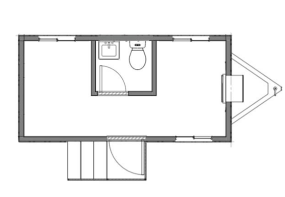
Oficinas Móviles Querétaro
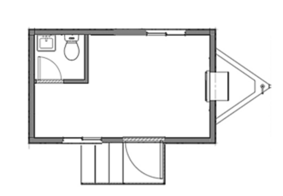
Oficinas Móviles Querétaro

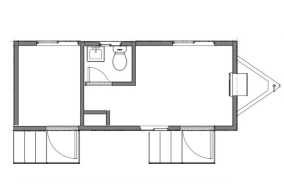
UNIDADES

Nuestro servicio es únicamente a 70km a la redonda de nuestras instalaciones.

Best AI Website Creator