Oficinas Móviles Querétaro



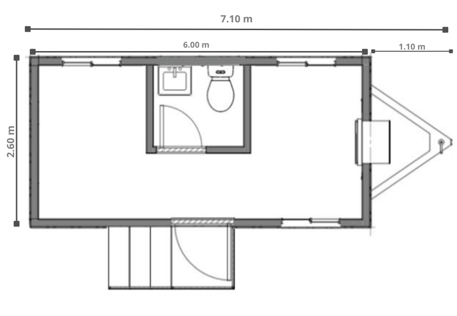
OFICINA 5

2.40 x 6.0 m

Mobirise
Oficinas Móviles Querétaro

-Aislamiento térmico y acústico
-Contacto 110v
-Salida de Voz y Datos

✅ Servicio de mantenimiento preventivo
-Aire acondicionado
-Torres y escaleras

Servicio en El Marqués, Querétaro, San Juan del Río, San Miguel de Allende (y alrededores)

HTML Maker